
物件概要
| 号室 | タイプ | 面積 | 状況 | 家賃 |
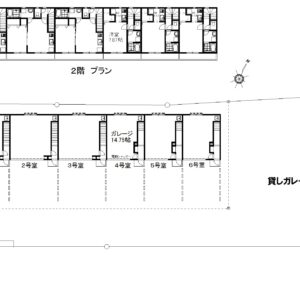
| 1号室 | 1DK | 75.35 m2 | 入居中 | – |
| 2号室 | 1DK | 75.35 m2 | 入居中 | – |
| 3号室 | 1DK | 75.35 m2 | 入居中 | – |
| 4号室 | 1K | 59.20 m2 | 入居中 | – |
| 5号室 | 1K | 59.20 m2 | 入居中 | – |
| 6号室 | 1K | 59.20 m2 | 入居中 | – |
| 交通 | 相模原市南区上鶴間本町4丁目 小田急小田原線 相模大野駅 徒歩9分 東名高速 横浜町田インター 4.5km |
| 賃貸条件 | 管理費 3,000円 敷金:2ヶ月/礼金:1ヶ月 契約期間:2年(更新可) 1~3号室は、屋外駐車スペース2台付 4~6号室は、屋外駐車スペース1台付 |
| 物件概要 | 木造2階建て 【平成26年03月竣工】 総戸数:1棟 6戸 ガレージ車1台用×3戸(屋外駐車場1台付) ガレージ車2台用×3戸(屋外駐車場2台付) 【併設貸ガレージ情報】は コチラ |
| 設備 | ・1F 電動シャッター ・システムキッチン ・エアコン 1台(2F) ・TVモニターホン ・バストイレ別 ・洗面化粧台 ・屋外散水栓 |
| その他 | SOHO相談(保証金3ヶ月/償却無) ガレージ内造作可(現状回復要) 保証人不要システム(賃料等×40%~) 火災保険加入要(2年:20,000円) 家賃等口座引落し 更新料(新賃料の1ヶ月) |





























