
賃貸ガレージハウス【ガレント板橋四葉2丁目【Part.3】】の物件紹介ムービー!
物件概要
| 号室 | タイプ | 面積 | 状況 | 家賃 |
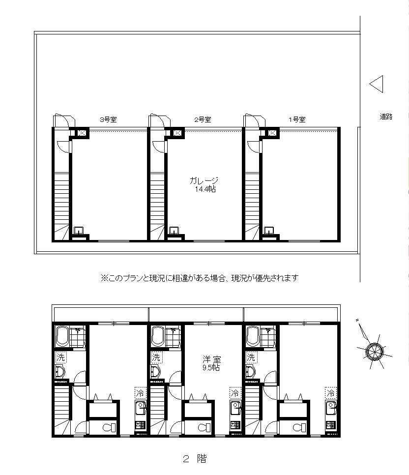
| 1号室 | 1R+ガレージ | 60.16 m2 | 入居中 | – |
| 2号室 | 1R+ガレージ | 59.81 m2 | 入居中 | – |
| 3号室 | 1R+ガレージ | 60.16 m2 | 入居中 | – |
【大和ハウス工業様施工】
| 交通 | 板橋区四葉2丁目 都営三田線 新高島平駅 徒歩13分 首都高5号線 高島平インター 0.6km |
| 賃貸条件 | 管理費 3,000円 敷金:2ヶ月/礼金:1ヶ月 定期借家契約(更新型) 契約期間:2年 |
| 物件概要 | 木造2階建て 【平成26年06月竣工】 総戸数:1棟3戸 ガレージ車1台用×3戸(屋外駐車場無し) |
| 設備 | ・1F 電動シャッター ・システムキッチン ・エアコン 1台(2F) ・TVモニターホン ・バストイレ別 ・洗面化粧台 ・屋外散水栓 |
| その他 | SOHO可(保証金3ヶ月/償却無) ガレージ内造作可(現状回復要) 保証人不要システム(賃料等×40%~) 火災保険加入要(2年:17,000円) 家賃等口座引落し |



























